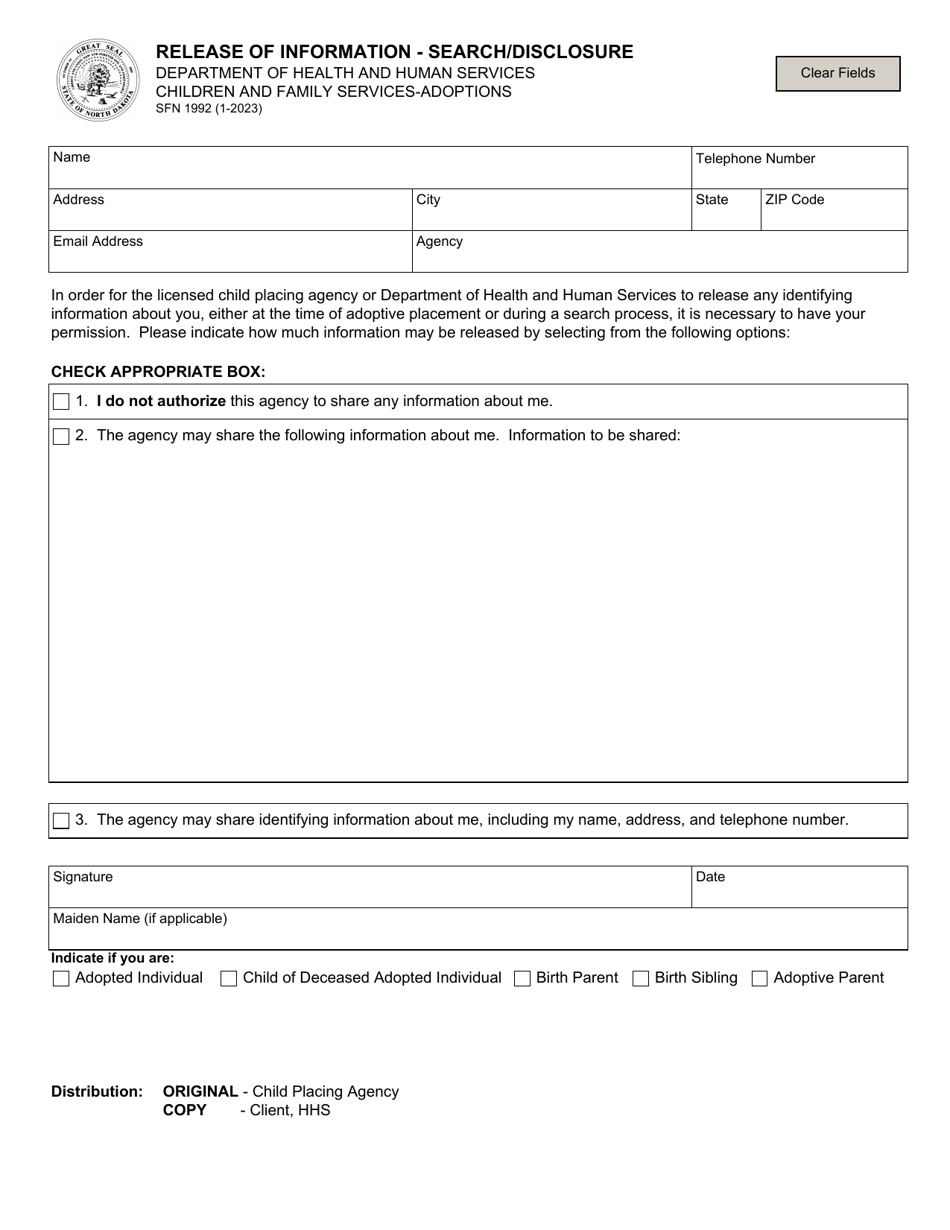
North Dakota Property Disclosure Form . north dakota law requires a written property disclosure for the sale, exchange, or purchase of real property if:. 1 notice for north dakota property: 2 this form is designed to guide you, the seller(s), in making the legally required disclosures. the written disclosure form must be in the form of the written disclosure form established by the north dakota real. beginning august 1, 2021, nd law requires written property disclosure for the sale, exchange or purchase of real property if. 2 this form is designed to guide you, the seller(s), in making the legally required disclosures. 1 notice for north dakota property: Monday, september 2, 2024, in observation of labor day. the north dakota real estate commission office will be closed.
from www.propertiesinjuneau.com
beginning august 1, 2021, nd law requires written property disclosure for the sale, exchange or purchase of real property if. the north dakota real estate commission office will be closed. 2 this form is designed to guide you, the seller(s), in making the legally required disclosures. the written disclosure form must be in the form of the written disclosure form established by the north dakota real. north dakota law requires a written property disclosure for the sale, exchange, or purchase of real property if:. 2 this form is designed to guide you, the seller(s), in making the legally required disclosures. 1 notice for north dakota property: 1 notice for north dakota property: Monday, september 2, 2024, in observation of labor day.
Residential Property Disclosures Latitude 58 Real Estate Group
North Dakota Property Disclosure Form north dakota law requires a written property disclosure for the sale, exchange, or purchase of real property if:. 1 notice for north dakota property: beginning august 1, 2021, nd law requires written property disclosure for the sale, exchange or purchase of real property if. Monday, september 2, 2024, in observation of labor day. the north dakota real estate commission office will be closed. the written disclosure form must be in the form of the written disclosure form established by the north dakota real. 2 this form is designed to guide you, the seller(s), in making the legally required disclosures. north dakota law requires a written property disclosure for the sale, exchange, or purchase of real property if:. 2 this form is designed to guide you, the seller(s), in making the legally required disclosures. 1 notice for north dakota property:
From www.sampleforms.com
FREE 10+ Sample Real Estate Disclosure Forms in PDF MS Word North Dakota Property Disclosure Form 2 this form is designed to guide you, the seller(s), in making the legally required disclosures. the north dakota real estate commission office will be closed. north dakota law requires a written property disclosure for the sale, exchange, or purchase of real property if:. 1 notice for north dakota property: Monday, september 2, 2024, in observation of. North Dakota Property Disclosure Form.
From www.formsbank.com
Fillable Schedule Dds2b North Dakota Domestic Disclosure Spreadsheet Apportionment North Dakota Property Disclosure Form the north dakota real estate commission office will be closed. beginning august 1, 2021, nd law requires written property disclosure for the sale, exchange or purchase of real property if. Monday, september 2, 2024, in observation of labor day. 2 this form is designed to guide you, the seller(s), in making the legally required disclosures. north dakota. North Dakota Property Disclosure Form.
From esign.com
Free North Dakota Property Management Agreement PDF Word North Dakota Property Disclosure Form the written disclosure form must be in the form of the written disclosure form established by the north dakota real. beginning august 1, 2021, nd law requires written property disclosure for the sale, exchange or purchase of real property if. 1 notice for north dakota property: the north dakota real estate commission office will be closed.. North Dakota Property Disclosure Form.
From www.templateroller.com
North Dakota Property Record Residential Fill Out, Sign Online and Download PDF Templateroller North Dakota Property Disclosure Form 1 notice for north dakota property: 2 this form is designed to guide you, the seller(s), in making the legally required disclosures. beginning august 1, 2021, nd law requires written property disclosure for the sale, exchange or purchase of real property if. the written disclosure form must be in the form of the written disclosure form established. North Dakota Property Disclosure Form.
From www.templateroller.com
Form SFN1992 Fill Out, Sign Online and Download Fillable PDF, North Dakota Templateroller North Dakota Property Disclosure Form the written disclosure form must be in the form of the written disclosure form established by the north dakota real. 2 this form is designed to guide you, the seller(s), in making the legally required disclosures. 2 this form is designed to guide you, the seller(s), in making the legally required disclosures. north dakota law requires a written. North Dakota Property Disclosure Form.
From legaltemplates.net
Free North Dakota Quitclaim Deed Form PDF & Word North Dakota Property Disclosure Form north dakota law requires a written property disclosure for the sale, exchange, or purchase of real property if:. 2 this form is designed to guide you, the seller(s), in making the legally required disclosures. 2 this form is designed to guide you, the seller(s), in making the legally required disclosures. beginning august 1, 2021, nd law requires written. North Dakota Property Disclosure Form.
From www.templateroller.com
North Dakota Property Record Residential Fill Out, Sign Online and Download PDF Templateroller North Dakota Property Disclosure Form 2 this form is designed to guide you, the seller(s), in making the legally required disclosures. 1 notice for north dakota property: the north dakota real estate commission office will be closed. 1 notice for north dakota property: 2 this form is designed to guide you, the seller(s), in making the legally required disclosures. beginning august. North Dakota Property Disclosure Form.
From www.uslegalforms.com
Real Estate Disclosure Form 20202022 Fill and Sign Printable Template Online US Legal Forms North Dakota Property Disclosure Form 1 notice for north dakota property: 2 this form is designed to guide you, the seller(s), in making the legally required disclosures. 1 notice for north dakota property: north dakota law requires a written property disclosure for the sale, exchange, or purchase of real property if:. Monday, september 2, 2024, in observation of labor day. the. North Dakota Property Disclosure Form.
From www.uslegalforms.com
North Dakota Disclosure Withholding Tax Registration US Legal Forms North Dakota Property Disclosure Form north dakota law requires a written property disclosure for the sale, exchange, or purchase of real property if:. 1 notice for north dakota property: 1 notice for north dakota property: 2 this form is designed to guide you, the seller(s), in making the legally required disclosures. Monday, september 2, 2024, in observation of labor day. the. North Dakota Property Disclosure Form.
From leaseagreements.com
Free North Dakota RenttoOwn Lease Agreement PDF WORD RTF North Dakota Property Disclosure Form 2 this form is designed to guide you, the seller(s), in making the legally required disclosures. Monday, september 2, 2024, in observation of labor day. 2 this form is designed to guide you, the seller(s), in making the legally required disclosures. 1 notice for north dakota property: north dakota law requires a written property disclosure for the sale,. North Dakota Property Disclosure Form.
From www.sampleforms.com
FREE 10+ Sample Real Estate Disclosure Forms in PDF MS Word North Dakota Property Disclosure Form the north dakota real estate commission office will be closed. Monday, september 2, 2024, in observation of labor day. 1 notice for north dakota property: 1 notice for north dakota property: the written disclosure form must be in the form of the written disclosure form established by the north dakota real. 2 this form is designed. North Dakota Property Disclosure Form.
From www.sampleforms.com
FREE 10+ Sample Real Estate Disclosure Forms in PDF MS Word North Dakota Property Disclosure Form the written disclosure form must be in the form of the written disclosure form established by the north dakota real. Monday, september 2, 2024, in observation of labor day. 2 this form is designed to guide you, the seller(s), in making the legally required disclosures. north dakota law requires a written property disclosure for the sale, exchange, or. North Dakota Property Disclosure Form.
From www.signnow.com
North Dakota Disclosure Statement Form Fill Out and Sign Printable PDF Template airSlate SignNow North Dakota Property Disclosure Form 2 this form is designed to guide you, the seller(s), in making the legally required disclosures. the written disclosure form must be in the form of the written disclosure form established by the north dakota real. the north dakota real estate commission office will be closed. 1 notice for north dakota property: north dakota law requires. North Dakota Property Disclosure Form.
From www.formsbank.com
Fillable North Dakota Domestic Disclosure Spreadsheet printable pdf download North Dakota Property Disclosure Form 1 notice for north dakota property: 2 this form is designed to guide you, the seller(s), in making the legally required disclosures. the written disclosure form must be in the form of the written disclosure form established by the north dakota real. 2 this form is designed to guide you, the seller(s), in making the legally required disclosures.. North Dakota Property Disclosure Form.
From www.templateroller.com
Form SFN18609 Fill Out, Sign Online and Download Fillable PDF, North Dakota Templateroller North Dakota Property Disclosure Form beginning august 1, 2021, nd law requires written property disclosure for the sale, exchange or purchase of real property if. 2 this form is designed to guide you, the seller(s), in making the legally required disclosures. 1 notice for north dakota property: the written disclosure form must be in the form of the written disclosure form established. North Dakota Property Disclosure Form.
From www.templateroller.com
Form SFN940 Fill Out, Sign Online and Download Fillable PDF, North Dakota Templateroller North Dakota Property Disclosure Form the north dakota real estate commission office will be closed. 1 notice for north dakota property: north dakota law requires a written property disclosure for the sale, exchange, or purchase of real property if:. the written disclosure form must be in the form of the written disclosure form established by the north dakota real. beginning. North Dakota Property Disclosure Form.
From esign.com
Free North Dakota Residential Purchase and Sale Agreement PDF Word North Dakota Property Disclosure Form 1 notice for north dakota property: the written disclosure form must be in the form of the written disclosure form established by the north dakota real. Monday, september 2, 2024, in observation of labor day. 2 this form is designed to guide you, the seller(s), in making the legally required disclosures. north dakota law requires a written. North Dakota Property Disclosure Form.
From www.templateroller.com
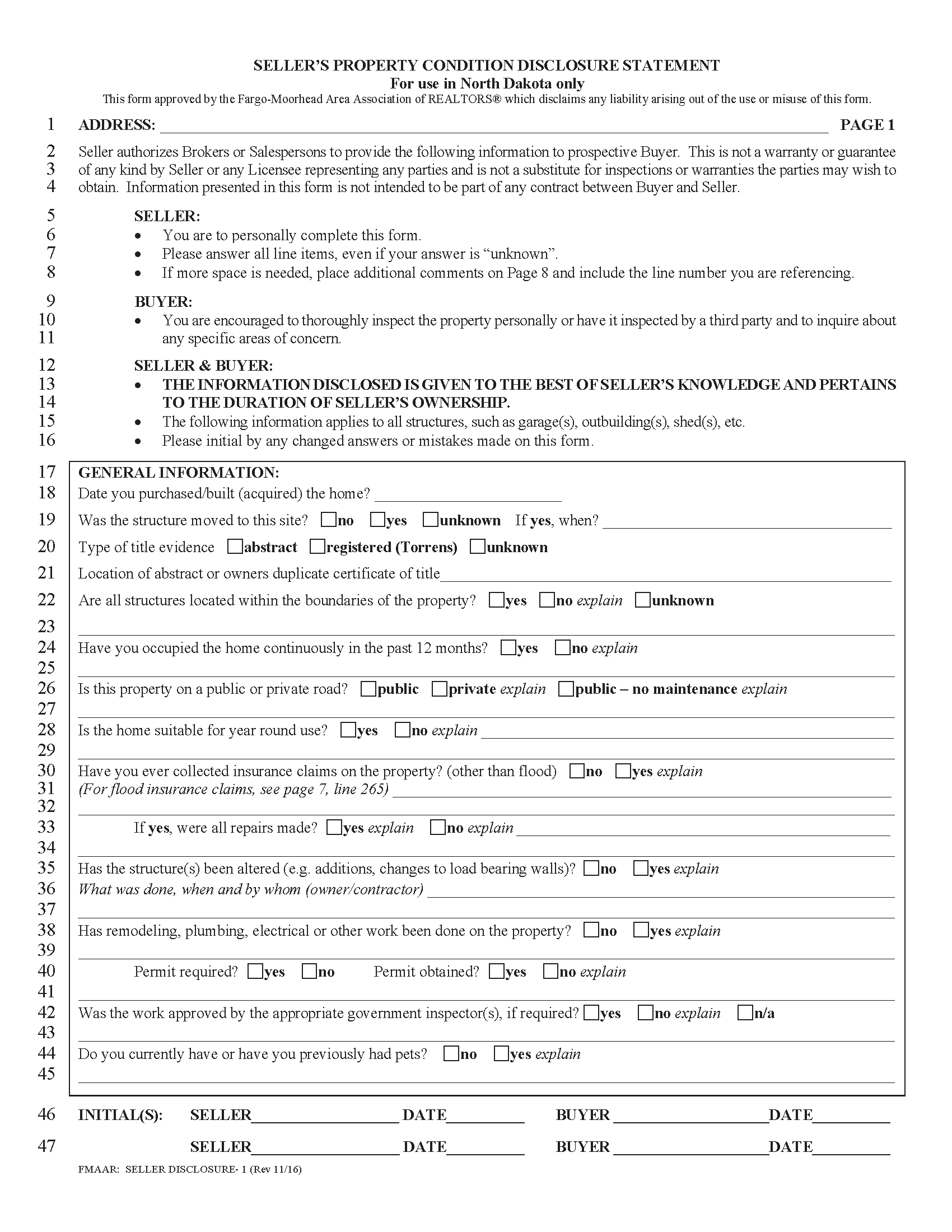
North Dakota Seller's Property Disclosure Form Download Printable PDF Templateroller North Dakota Property Disclosure Form the north dakota real estate commission office will be closed. beginning august 1, 2021, nd law requires written property disclosure for the sale, exchange or purchase of real property if. 2 this form is designed to guide you, the seller(s), in making the legally required disclosures. 2 this form is designed to guide you, the seller(s), in making. North Dakota Property Disclosure Form.